Hlavička stránky
Detail produktu
Wilo WJ 204 EM 4262914
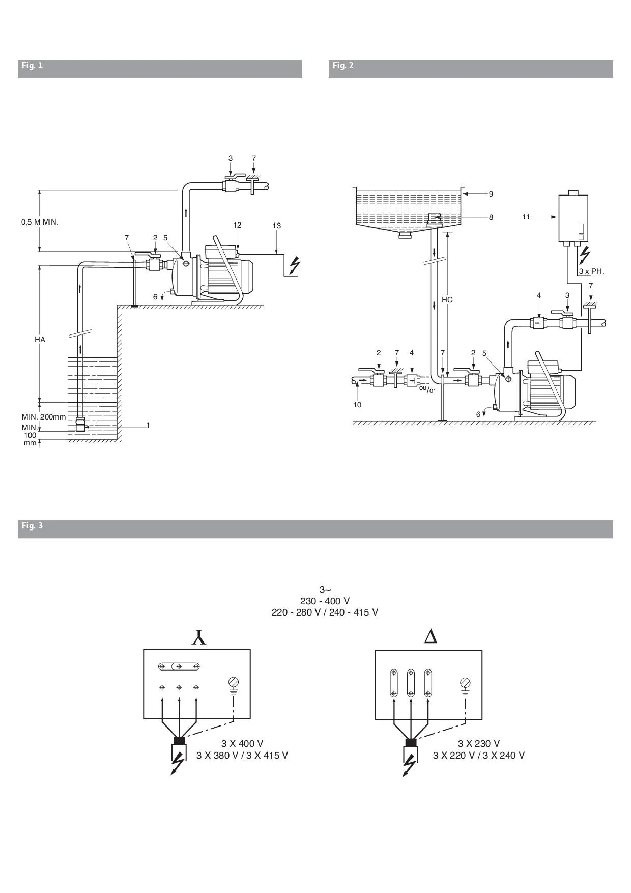
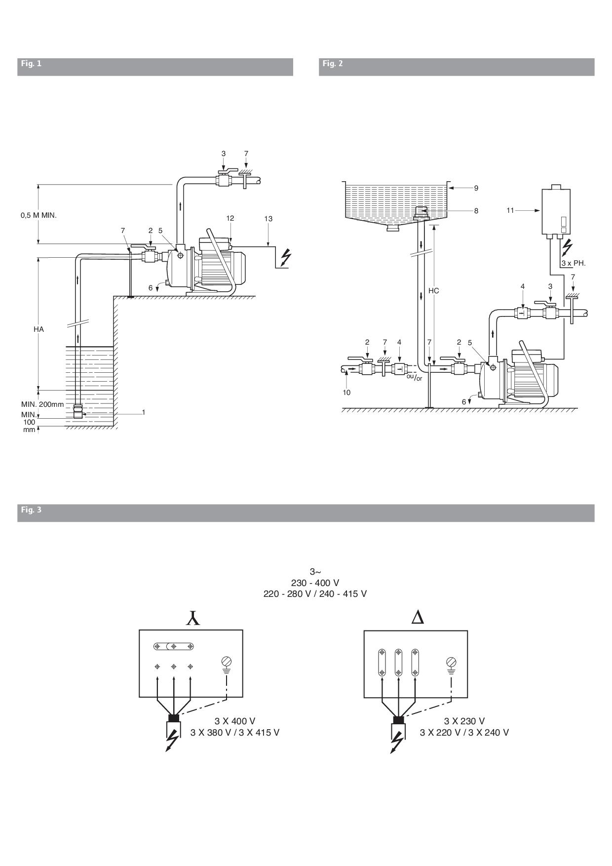
Návod Wilo Jet WJ
Wilo WJ 204 EM 4262914
Stáhnout PDF
(1,9 MB)
Hlavní obsah stránky